ニューシティー21ビル 日ノ出町の賃貸店舗(建物一部)!バースナッククラブナイトレジャーキャバクラ|有限会社G.Aホーム

横浜の貸事務所・貸店舗はG.Aホームへ!TEL:045-410-1001営業時間:10:00〜19:00

TOPページ
貸事務所・貸店舗・テナント検索
横浜市中区の貸事務所・貸店舗・テナント一覧
ニューシティー21ビル 日ノ出町の賃貸店舗(建物一部)

ニューシティー21ビル  日ノ出町の賃貸店舗(建物一部)

賃料 460,100円- 坪単価 1.5万円
共益費 / 管理費 管理費 敷金 / 保証金 262万円
礼金 55.33万円 償却 -
募集区画 201 契約面積 103.8m2 / 31.39坪
入居可能日 即入居可 契約期間 2年
更新料 取引態様 媒介
構造規模 地上7階/地下1階/SRC造(鉄骨鉄筋コンクリート造) 築年月 1996年8月
交通
京急本線 「日ノ出町駅」 徒歩5分
横浜市営地下鉄ブルーライン 「伊勢佐木長者町駅」 徒歩8分
JR京浜東北・根岸線 「関内駅」 徒歩11分
JR横浜線 「関内駅」 徒歩11分
横浜市営地下鉄ブルーライン 「関内駅」 徒歩11分
所在地 神奈川県横浜市中区長者町九丁目158 周辺MAP
※事業用物件は 賃料・共益費・管理費等が税別表記です
【建物外観】  【間取】  【その他部屋・スペース】  【その他部屋・スペース】 
【建物外観】 
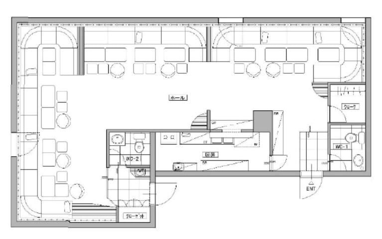
【間取】 
【その他部屋・スペース】 
【その他部屋・スペース】 
  • 【建物外観】 
  • 【間取】 
  • 【その他部屋・スペース】 
  • 【その他部屋・スペース】 

【スタッフからのイチオシポイント!】ニューシティー21ビル

◆クラブ等◆京急本線「日ノ出」駅より徒歩5分の繁華街内の立地◆
神奈川県横浜市中区長者町九丁目158【京急本線 日ノ出町駅徒歩5分】にある賃貸店舗(建物一部)です。
1996年8月築の地上7階/地下1階建ての店舗(建物一部)で、物件は地上7階/地下1階建ての2階部分です。物件の広さは103.8m2です。
※物件のもっと詳しい内容や入居時期、諸条件のご相談など、ホームページには掲載が間に合わず載せきれていない情報もございます。
気になることが御座いましたらお気軽にメールにてお問い合わせください。
045-410-1001
有限会社G.Aホーム
お問い合わせNO:RHS-69753536018

物件詳細情報

駐車場 看板
エレベーター あり 24時間使用
エントランス 警備
光ケーブル 天井高
空調 個別空調 トイレ 専有部分にあり
床仕様 給排水 共有
ガス 造作 リース店舗 ※詳細は備考参照
耐震 新耐震
業種
  • Bar・スナック
  • その他
  • コメント ◆クラブ等◆京急本線「日ノ出」駅より徒歩5分の繁華街内の立地◆
    備 考 《その他》リース店舗 店舗設備:内装什器(ボトル棚、イス、テーブル他)、エアコン、冷蔵庫、給湯器、ガスコンロ、2槽シンク他
    情報更新日:2024年06月26日 次回更新予定日:2024年07月10日
    ※各種情報と差異がある場合は現況優先となります

    こちらの物件の空室状況

    区画図 募集区画 賃料
    坪単価
    共益費/管理費 契約面積 敷金 / 保証金 礼金 償却 お気に入り 物件詳細
    区画図
    201
    46.01万円
    1.47万円
    管理費 103.8m2
    31.39坪
    262万円 55.33万円 - お気に入り 詳細を見る
    区画図
    302・3
    46.783万円
    1.49万円
    管理費 104.07m2
    31.48坪
    262万円 55.44万円 - お気に入り 詳細を見る
    区画図
    306
    23.694万円
    1.5万円
    43,560円 52.33m2
    15.82坪
    120万円 28.05万円 - お気に入り 詳細を見る
    区画図
    310.11
    48.774万円
    1.49万円
    管理費 107.9m2
    32.63坪
    264万円 57.75万円 - お気に入り 詳細を見る
    区画図
    402.3
    48.07万円
    1.49万円
    管理費 107.01m2
    32.37坪
    240万円 56.98万円 - お気に入り 詳細を見る
    区画図
    404
    22.814万円
    1.52万円
    41,360円 49.69m2
    15.03坪
    132万円 26.95万円 - お気に入り 詳細を見る

    地図情報


    045-410-1001
    有限会社G.Aホーム
    お問い合わせNO:RHS-69753536018

    この物件に似た物件をチェック!


    閲覧した物件の履歴

    閲覧した物件の一覧を見る

    最近検索した条件一覧



    気になったら今すぐ!カンタンお問合せ



    お問合せ内容必須
    【備考欄】
    希望条件・来店希望日・その他質問がございましたらご記入ください。
    お客様情報
    お名前必須
    メールアドレス必須
    電話番号



    ※ご入力いただいたお客さまの個人情報は、「個人情報の取扱いについて」に基づき適正に取り扱います。必ずお読みになり、同意の上お問い合わせください。




    ※ご記入いただいたメールアドレス宛てに、お問合せ内容の確認メールをお送りいたします。
    ※Yahoo!メールなどのフリーメールをご利用の場合、迷惑メールフォルダに入る場合があります。
     迷惑メールのフォルダ・設定等をご確認下さい。
     


    ▲ページのTOPへ戻る

    お問合せはこちら

    有限会社G.Aホーム 045-410-1001

    物件リクエスト